5 locali in vendita

Portici, Via Malta - Portici Bellavista
€ 325.000
5 locali 5 locali
145 Mq 145 Mq
2 bagni 2 bagni

5 locali in vendita

Portici, Via Malta - Portici Bellavista

Descrizione annuncio

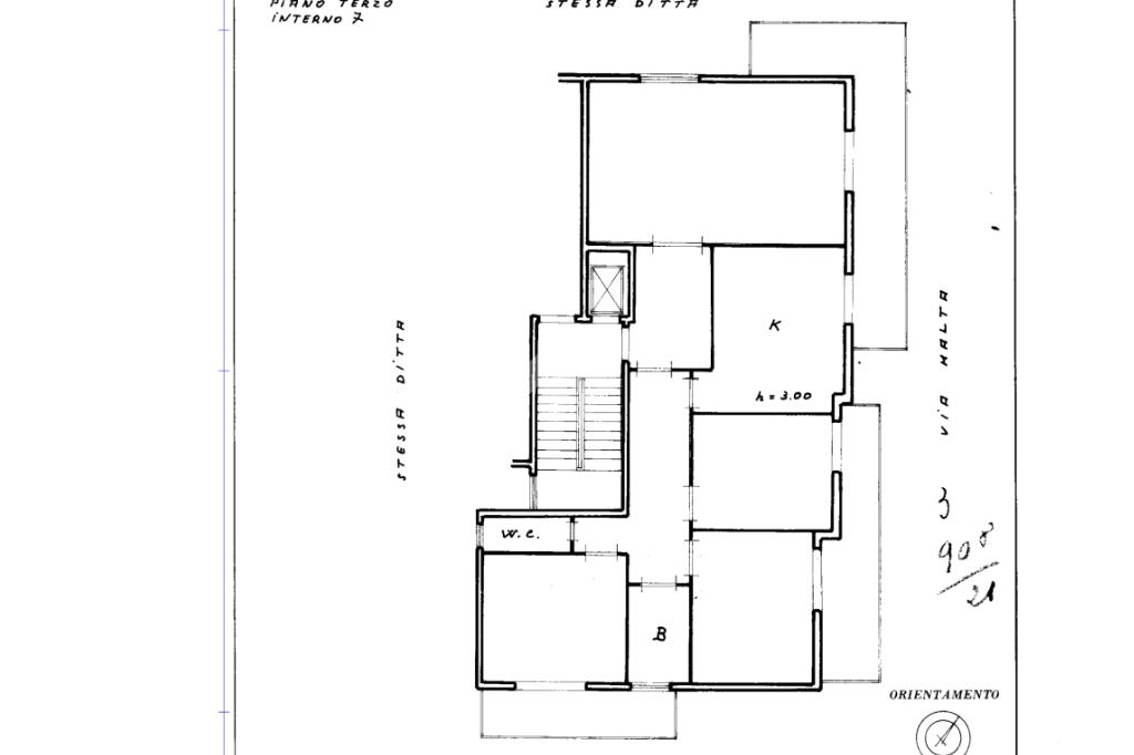
Via Malta, parte alta di Portici poco distante dalla circumvesuviana di Bellavista e da Piazza Poli, proponiamo in vendita al terzo piano di un edificio luminoso con tre balconi, uno dei quali offre una splendida vista sul Vesuvio.

L'appartetamento è di 5 vani ed è da ristrutturare, inoltre è incluso nel prezzo un posto auto nel parco condominiale.

Entrando :si accede tramite un disimpegno che si apre su due lati. Da un lato si trova il salone doppio con finestra e uscita sul balcone, mentre dall'altro lato si trova un corridoio che porta alla cucina con uscita sul medesimo balcone . Proseguendo lungo il corridoio , si trovano 3 camere di cui due con uscita sul secondo balcone e la terza con l'uscita sul terzo balcone e due bagni con due finestre.

L'abitazione è spaziosa e ben distribuita con ambienti luminosi e accoglienti.

Per visionare contattateci allo 081.19.48.7665anche servizio whatsapp

Mostra tutto

Nelle vicinanze

Trasporto pubblico Trasporto pubblico
Portici Bellavista
Portici Bellavista
300 m
Portici Via Libertà
Portici Via Libertà
740 m
Trasporto pubblico
290 m
Diaz
Diaz
360 m
stazione di Pietrarsa-San Giorgio a Cremano
stazione di Pietrarsa-San Giorgio a Cremano
2,1 Km
Ricariche auto elettriche Ricariche auto elettriche
Stazione Portici Bellavista | EnelX
280 m
Portici De Lauzieres | EnelX
650 m
Portici Siani | EnelX
780 m
Portici Parcheggio Comunale Multipiano | EnelX
1,2 Km
Scuole Scuole
IIS Carlo Levi
210 m
Suore Missionarie Catechiste Del Sacro Cuore
370 m
Istituto Comprensivo Eduardo De Filippo
530 m
4° Istituto comprensivo
540 m
7° Istituto comprensivo Santagata
560 m
Farmacia Farmacia
Farmacia
1,7 Km
Farmacia Tufarelli
2,3 Km
Ospedali Ospedali
Guardia medica
940 m
AZIENDA SANITARIA LOCALE NA1 - DISTR. 52
3,0 Km
Supermercati Supermercati
Supermercato SISA - Gruppo di Polo
850 m
Euroesse
920 m
Maxistore Decò
1,0 Km
MD Discount
1,4 Km
Euroesse Supermercati
1,6 Km
Negozi Negozi
OVS
950 m
Negozi
1,9 Km
One More Abbigliamento
2,9 Km
Caseificio Ambrosio
3,0 Km
Bar Bar
Bar Guida
2,2 Km
Ristoranti Ristoranti
La Tradizione
520 m
Villa La Colombaia
640 m
Pizzeria Salvo
1,4 Km
La Vineria senza Cucina
1,4 Km
Pizzeria da Michele
1,6 Km
Mostra tutto

Caratteristiche

Rif.:
60881842
Piano:
3 di 4 con ascensore (Piano alto)
Posti auto:
1
Balconi:
3
Camere da letto:
3
Arredamento:
Assente
Mostra tutto
Prezzo Prezzo
€ 325.000
Rata mutuo Rata mutuo
€ 1.534 / mese
Spese annue Spese annue
€ 840
Proponi il tuo prezzoProponi il tuo prezzo

Classe Energetica

D
D
D
D
D
D
D
D
D
EP globale non rinnovabile:
90.00 kW h/m² anno
EP globale rinnovabile:
90.00 kW h/m² anno
EP invernale del fabbricato:
EP estiva del fabbricato:
Anno di costruzione:
1967
Riscaldamento:
Autonomo
Tipo impianto:
Ad aria
Tipo alimentazione:
Aria

Ti interessa visionare l'immobile?

Fissa un appuntamento  Fissa un appuntamento

Richiedi informazioni

Clicca su Leggi per aprire l'informativa
* Questi campi sono obbligatori

Calcola il tuo mutuo

Semplice e senza impegno
Anticipo

( % )
Mutuo

( % )

pochi semplici passi

inserisci i tuoi dati
Questionario completato
Grazie per aver richiesto un appuntamento senza impegno con un nostro Consulente del Credito e Assicurativo.

Hai inserito correttamente tutti i dati necessari e a breve riceverai una e-mail con un link da convalidare per inviare i tuoi dati.
Affiliato
Tecnoviale Srl
Viale Leonardo da Vinci, 169/171 80055 Portici (NA)
Viale Leonardo da Vinci, 169/171 80055 Portici (NA)
Zona: Portici Viale
Mostra su mappa
Orari: Dal lunedì al venerdì dalle ore 9.00 alle ore 20.00 Sabato dalle ore 9.00 alle 13.00 e dalle 17.00 alle 20.00 e domenica dalle 11.00 alle 13.00
Affiliato
Tecnoviale Srl
Viale Leonardo da Vinci, 169/171 80055 Portici (NA)

2025 Tecnocasa Franchising S.p.A. - P. IVA 08365160152 - Via Monte Bianco 60/A 20089 Rozzano (MI). Ogni agenzia ha un proprio titolare ed è autonoma. Privacy policy | Policy utilizzo | Cookie policy